Spacious family living, thoughtfully designed

3 bedroom modular home

The Hartwood

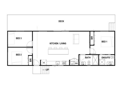
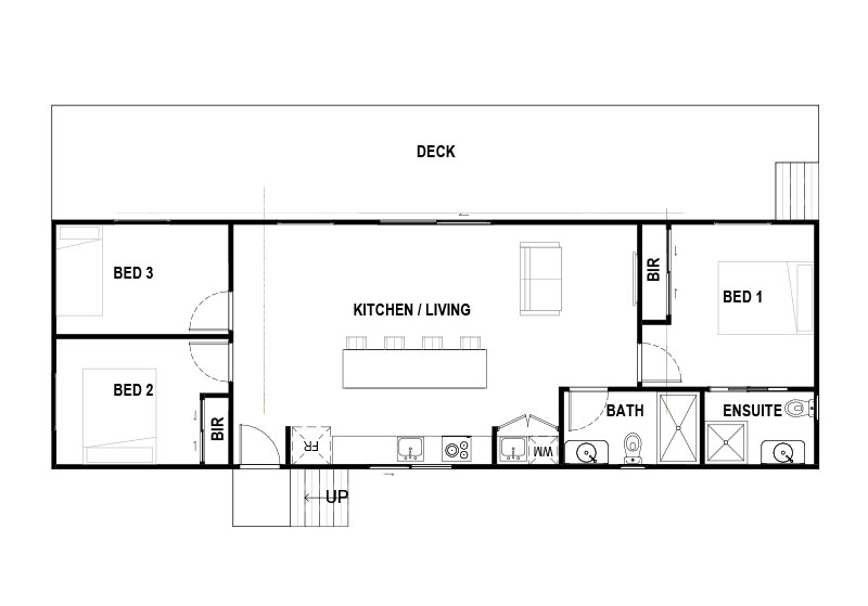
The Hartwood combines a spacious, flexible layout with a timeless gable roof design and classic front porch. With 83m² of carefully planned space, this modular home offers the perfect balance of shared family areas and private retreats, ideal for regional lifestyles, family living, or investment opportunities.

The Specs

Designed for everyday living

At the heart of The Hartwood lies a generous open-plan living zone, seamlessly connecting the kitchen, dining, and family spaces. This central hub extends onto the front porch, creating a versatile indoor-outdoor lifestyle perfect for Australian living.

The cleverly zoned bedroom wing provides privacy and quiet. The master suite features a private ensuite and built-in wardrobe, while the two additional bedrooms are serviced by a modern family bathroom. A dedicated laundry and additional storage ensure this home works as hard as you do.

Perfect for

Growing families

Ample space for kids, guests, and family life in a functional layout.

Perfect for rural and suburban blocks, with a design that complements the Australian landscape.

A manageable home that doesn’t compromise on comfort or flexibility.

Highly appealing to tenants seeking modern, energy-efficient living in regional areas.

What's included

Intelligent pavilion layout

Distinctive connected pavilions creating natural separation between living and sleeping zones

Central link hallway providing elegant transition between spaces

Thoughtful zoning supporting both family togetherness and individual privacy

Flexible layout adaptable to changing family needs

Year-round comfort with superior insulation and 7-star energy efficiency

Expansive living spaces

Generous open-plan design providing ample space for family gatherings and entertaining

Welcoming front porch extending your living space outdoors

Kitchen positioned for interaction while preparing meals

Dedicated dining area large enough for family meals and dinner parties

Comfortable living room with space for the whole family

Versatile bedroom wing

Master bedroom with ensuite creating a private parents’ retreat

Three additional bedrooms perfect for children, teenagers, or guests

Multi-purpose rumpus/study adaptable to your family’s changing needs

Well-appointed family bathroom with quality fixtures and fittings

Built-in storage throughout for organised family living

Quality construction

Double-glazed windows for thermal and acoustic performance

Comprehensive insulation in walls, ceiling, and floor

Colourbond exterior in your choice of contemporary colours

Quality construction meeting Class 1A residential standards

Designed for Australian conditions with superior structural integrity

Make it your own

While the Yarravale comes with premium features as standard, we offer extensive customisation options to reflect your personal style and specific needs:

External cladding choices

including James Hardie Axon, Weathertex, or custom Colorbond profiles

Interior colour
schemes

with coordinated cabinetry, flooring, and paint options

Bathroom
upgrades

including freestanding bath, walk-in shower, or premium vanity

Kitchen
enhancements

with stone benchtops, tiled splashbacks, or upgraded appliances

Additional external features

such as decking, pergolas, or accessibility ramps

The Prime Portables Difference

Built in our Mansfield facility under controlled conditions, The Yarravale represents our commitment to quality, efficiency, and client satisfaction. Our streamlined 5-step process takes care of everything from design to delivery, including:

Tailored consultation

 Site assessment

Permit management

Quality construction

Professional delivery

Our team is ready to help you bring the Yarravale to life on your property. Whether you’re ready to build or still exploring options, we’re here to guide you through every step.

Explore our modular homes