Compact Luxury, Thoughtfully Designed

1 bedroom modular home

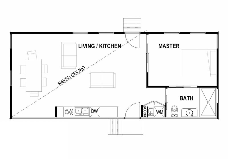
The Rosewood

The Rosewood combines smart design and premium finishes in a perfectly proportioned 60m² footprint. With its striking gable roof, abundant natural light, and intelligent space planning, this 1-bedroom modular home proves that downsizing never means downgrading.

The Specs

Designed for how you live

The Rosewood balances openness with privacy, creating distinct zones that flow naturally from one to the next. The center piece is a light-filled living area that connects to the kitchen, creating a social hub that feels surprisingly spacious.

Large vertical windows frame your surroundings while providing excellent cross-ventilation. The bedroom is positioned for privacy and quiet, with the bathroom easily accessible yet discreetly tucked away.

Every element from the kitchen layout to the storage solutions is designed to maximize functionality without sacrificing style.

Perfect for

Independent Living.

Ideal for singles or retirees seeking a low-maintenance, energy-efficient home with all the essentials.

Create a private, self-contained dwelling for parents, adult children, or guests while maintaining proximity and connection.

Generate income through short or long-term rental, with the durability and features guests appreciate.

Built tough for Australian conditions, The Rosewood is perfectly sized for farms, bush blocks, or town allotments.

What's included

Intelligent pavilion layout

Distinctive connected pavilions creating natural separation between living and sleeping zones

Central link hallway providing elegant transition between spaces

Thoughtful zoning supporting both family togetherness and individual privacy

Flexible layout adaptable to changing family needs

Year-round comfort with superior insulation and 7-star energy efficiency

Expansive living spaces

Generous open-plan design providing ample space for family gatherings and entertaining

Welcoming front porch extending your living space outdoors

Kitchen positioned for interaction while preparing meals

Dedicated dining area large enough for family meals and dinner parties

Comfortable living room with space for the whole family

Versatile bedroom wing

Master bedroom with ensuite creating a private parents’ retreat

Three additional bedrooms perfect for children, teenagers, or guests

Multi-purpose rumpus/study adaptable to your family’s changing needs

Well-appointed family bathroom with quality fixtures and fittings

Built-in storage throughout for organised family living

Quality construction

Double-glazed windows for thermal and acoustic performance

Comprehensive insulation in walls, ceiling, and floor

Colourbond exterior in your choice of contemporary colours

Quality construction meeting Class 1A residential standards

Designed for Australian conditions with superior structural integrity

Make it your own

While the Yarravale comes with premium features as standard, we offer extensive customisation options to reflect your personal style and specific needs:

External cladding choices

including James Hardie Axon, Weathertex, or custom Colorbond profiles

Interior colour
schemes

with coordinated cabinetry, flooring, and paint options

Bathroom
upgrades

including freestanding bath, walk-in shower, or premium vanity

Kitchen
enhancements

with stone benchtops, tiled splashbacks, or upgraded appliances

Additional external features

such as decking, pergolas, or accessibility ramps

The Prime Portables Difference

Built in our Mansfield facility under controlled conditions, The Yarravale represents our commitment to quality, efficiency, and client satisfaction. Our streamlined 5-step process takes care of everything from design to delivery, including:

Tailored consultation

 Site assessment

Permit management

Quality construction

Professional delivery

Our team is ready to help you bring the Yarravale to life on your property. Whether you’re ready to build or still exploring options, we’re here to guide you through every step.

Explore our modular homes