Pavilion-style living, expansive and practical
4 bedroom modular home
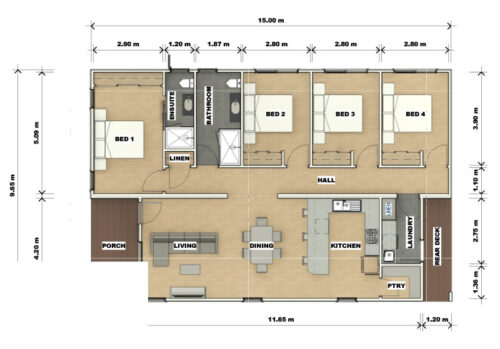
The Yarravale
The Yarravale represents our premium pavilion-style design, offering a generous 145m² of thoughtfully zoned living space. With its distinctive connected pavilions, striking gable roof, and innovative layout, this 4-bedroom home delivers the ultimate balance of communal living and private retreats for larger families.
The Specs
- Size 145m²
- Bedrooms 4
- Bathrooms 2
- Energy Rating 7 stars
- Roof Style Gable
- Build time 12-16 wks
Designed for modern family dynamics
The Yarravale’s innovative pavilion design creates a natural separation between living and sleeping zones, connected by an elegant central link. This thoughtful layout provides the perfect balance between togetherness and privacy that modern families need.
The bedroom wing houses four well-proportioned bedrooms, including a master with ensuite, plus a versatile rumpus room that can function as a study, playroom, teen retreat, or guest accommodation. The family bathroom and linen storage are conveniently positioned to service the additional bedrooms.
Across the connecting link, the living pavilion features an expansive open-plan kitchen, dining and living area that forms the heart of family life, with a dedicated laundry and welcoming front porch completing this sophisticated home.
Perfect for
Growing families
Offers the space and flexibility needed as children grow, with separate zones for parents, children, and shared family activities.
Multi-generational living
The four-bedroom layout with additional rumpus/study provides accommodation options for extended family members while maintaining privacy.
Work from home professionals
The dedicated rumpus/study offers a quiet space for concentration away from the main living areas, creating the perfect home office.
Entertainers
The spacious open-plan living areas and multiple bedrooms make this perfect for those who love to host friends and family for both day visits and overnight stays.
What's included




Intelligent pavilion layout
Distinctive connected pavilions creating natural separation between living and sleeping zones
Central link hallway providing elegant transition between spaces
Thoughtful zoning supporting both family togetherness and individual privacy
Flexible layout adaptable to changing family needs
Year-round comfort with superior insulation and 7-star energy efficiency
Expansive living spaces
Generous open-plan design providing ample space for family gatherings and entertaining
Welcoming front porch extending your living space outdoors
Kitchen positioned for interaction while preparing meals
Dedicated dining area large enough for family meals and dinner parties
Comfortable living room with space for the whole family







Versatile bedroom wing
Master bedroom with ensuite creating a private parents’ retreat
Three additional bedrooms perfect for children, teenagers, or guests
Multi-purpose rumpus/study adaptable to your family’s changing needs
Well-appointed family bathroom with quality fixtures and fittings
Built-in storage throughout for organised family living
Quality construction
Double-glazed windows for thermal and acoustic performance
Comprehensive insulation in walls, ceiling, and floor
Colourbond exterior in your choice of contemporary colours
Quality construction meeting Class 1A residential standards
Designed for Australian conditions with superior structural integrity



Make it your own
While the Yarravale comes with premium features as standard, we offer extensive customisation options to reflect your personal style and specific needs:
External cladding choices
including James Hardie Axon, Weathertex, or custom Colorbond profiles
Interior colour
schemes
with coordinated cabinetry, flooring, and paint options
Bathroom
upgrades
including freestanding bath, walk-in shower, or premium vanity
Kitchen
enhancements
with stone benchtops, tiled splashbacks, or upgraded appliances
Additional external features
such as decking, pergolas, or accessibility ramps
The Prime Portables Difference
Built in our Mansfield facility under controlled conditions, The Yarravale represents our commitment to quality, efficiency, and client satisfaction. Our streamlined 5-step process takes care of everything from design to delivery, including:
Tailored consultation
Site assessment
Permit management
Quality construction
Professional delivery
Our team is ready to help you bring the Yarravale to life on your property. Whether you’re ready to build or still exploring options, we’re here to guide you through every step.


