Thoughtfully designed,
built to last
3 bedroom modular home
The Wattleby
The Wattleby combines a sleek gable roofline and inviting open-plan layout with the durability and efficiency of modern modular construction. Designed for real Australian living.
Whether you’re creating a primary residence, adding a stylish second dwelling, or investing in a long-term rental, The Wattleby offers a flexible solution with premium features and a focus on energy efficiency.
The Specs
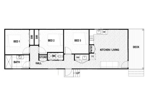
- Size 93.6m²
- Bedrooms 3
- Bathrooms 2
- Energy Rating 7 stars
- Roof Style Gable
- Build time 12-16 wks
Designed for how you live
At the heart of The Wattleby is a spacious open-plan living zone designed to bring people together. The kitchen, dining, and family areas flow seamlessly, while large windows and sliding doors connect the indoors to a generous front deck, perfect for entertaining or enjoying quiet mornings outdoors.
The private bedroom wing ensures restful spaces for every occupant. The master suite features its own ensuite and built-in wardrobe, while two additional bedrooms share a family bathroom. A full laundry and thoughtful storage solutions round out this smart, liveable design.
Perfect for
Growing families
Offers the perfect balance of shared spaces and private retreats for growing households.
Regional home builders
Built for Australian conditions, The Wattleby suits rural and suburban blocks alike.
Down-sizers with visitors
A compact yet spacious design that’s easy to maintain while offering room for guests.
Investment property
Highly desirable as a rental property, appealing to tenants seeking modern living.
What's included




Intelligent pavilion layout
Distinctive connected pavilions creating natural separation between living and sleeping zones
Central link hallway providing elegant transition between spaces
Thoughtful zoning supporting both family togetherness and individual privacy
Flexible layout adaptable to changing family needs
Year-round comfort with superior insulation and 7-star energy efficiency
Expansive living spaces
Generous open-plan design providing ample space for family gatherings and entertaining
Welcoming front porch extending your living space outdoors
Kitchen positioned for interaction while preparing meals
Dedicated dining area large enough for family meals and dinner parties
Comfortable living room with space for the whole family







Versatile bedroom wing
Master bedroom with ensuite creating a private parents’ retreat
Three additional bedrooms perfect for children, teenagers, or guests
Multi-purpose rumpus/study adaptable to your family’s changing needs
Well-appointed family bathroom with quality fixtures and fittings
Built-in storage throughout for organised family living
Quality construction
Double-glazed windows for thermal and acoustic performance
Comprehensive insulation in walls, ceiling, and floor
Colourbond exterior in your choice of contemporary colours
Quality construction meeting Class 1A residential standards
Designed for Australian conditions with superior structural integrity



Make it your own
While the Yarravale comes with premium features as standard, we offer extensive customisation options to reflect your personal style and specific needs:
External cladding choices
including James Hardie Axon, Weathertex, or custom Colorbond profiles
Interior colour
schemes
with coordinated cabinetry, flooring, and paint options
Bathroom
upgrades
including freestanding bath, walk-in shower, or premium vanity
Kitchen
enhancements
with stone benchtops, tiled splashbacks, or upgraded appliances
Additional external features
such as decking, pergolas, or accessibility ramps
The Prime Portables Difference
Built in our Mansfield facility under controlled conditions, The Yarravale represents our commitment to quality, efficiency, and client satisfaction. Our streamlined 5-step process takes care of everything from design to delivery, including:
Tailored consultation
Site assessment
Permit management
Quality construction
Professional delivery
Our team is ready to help you bring the Yarravale to life on your property. Whether you’re ready to build or still exploring options, we’re here to guide you through every step.



