Compact Luxury, Thoughtfully Designed
1 bedroom modular home
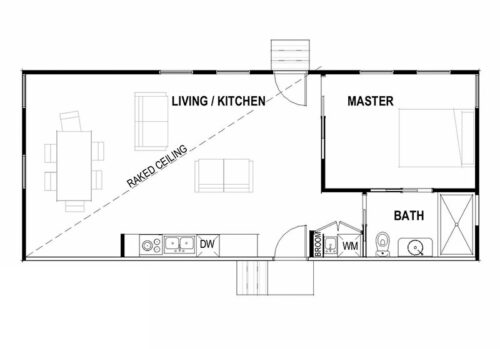
The Rosewood
The Rosewood combines smart design and premium finishes in a perfectly proportioned 60m² footprint. With its striking gable roof, abundant natural light, and intelligent space planning, this 1-bedroom modular home proves that downsizing never means downgrading.
The Specs
- Size 60m²
- Bedrooms 1
- Bathrooms 1
- Energy Rating 7 stars
- Roof Style Gable
- Build time 12-16 wks
Designed for how you live
The Rosewood balances openness with privacy, creating distinct zones that flow naturally from one to the next. The center piece is a light-filled living area that connects to the kitchen, creating a social hub that feels surprisingly spacious.
Large vertical windows frame your surroundings while providing excellent cross-ventilation. The bedroom is positioned for privacy and quiet, with the bathroom easily accessible yet discreetly tucked away.
Every element from the kitchen layout to the storage solutions is designed to maximize functionality without sacrificing style.
Perfect for
Independent Living.
Ideal for singles or retirees seeking a low-maintenance, energy-efficient home with all the essentials.
Multi-Generational Living
Create a private, self-contained dwelling for parents, adult children, or guests while maintaining proximity and connection.
Investment Property
Generate income through short or long-term rental, with the durability and features guests appreciate.
Rural & Regional Properties
Built tough for Australian conditions, The Rosewood is perfectly sized for farms, bush blocks, or town allotments.
What's included




Intelligent pavilion layout
Distinctive connected pavilions creating natural separation between living and sleeping zones
Central link hallway providing elegant transition between spaces
Thoughtful zoning supporting both family togetherness and individual privacy
Flexible layout adaptable to changing family needs
Year-round comfort with superior insulation and 7-star energy efficiency
Expansive living spaces
Generous open-plan design providing ample space for family gatherings and entertaining
Welcoming front porch extending your living space outdoors
Kitchen positioned for interaction while preparing meals
Dedicated dining area large enough for family meals and dinner parties
Comfortable living room with space for the whole family







Versatile bedroom wing
Master bedroom with ensuite creating a private parents’ retreat
Three additional bedrooms perfect for children, teenagers, or guests
Multi-purpose rumpus/study adaptable to your family’s changing needs
Well-appointed family bathroom with quality fixtures and fittings
Built-in storage throughout for organised family living
Quality construction
Double-glazed windows for thermal and acoustic performance
Comprehensive insulation in walls, ceiling, and floor
Colourbond exterior in your choice of contemporary colours
Quality construction meeting Class 1A residential standards
Designed for Australian conditions with superior structural integrity



Make it your own
While the Yarravale comes with premium features as standard, we offer extensive customisation options to reflect your personal style and specific needs:
External cladding choices
including James Hardie Axon, Weathertex, or custom Colorbond profiles
Interior colour
schemes
with coordinated cabinetry, flooring, and paint options
Bathroom
upgrades
including freestanding bath, walk-in shower, or premium vanity
Kitchen
enhancements
with stone benchtops, tiled splashbacks, or upgraded appliances
Additional external features
such as decking, pergolas, or accessibility ramps
The Prime Portables Difference
Built in our Mansfield facility under controlled conditions, The Yarravale represents our commitment to quality, efficiency, and client satisfaction. Our streamlined 5-step process takes care of everything from design to delivery, including:
Tailored consultation
Site assessment
Permit management
Quality construction
Professional delivery
Our team is ready to help you bring the Yarravale to life on your property. Whether you’re ready to build or still exploring options, we’re here to guide you through every step.



