Spacious family living, thoughtfully designed
3 bedroom modular home
The Glenmore
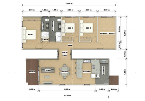
The Glenmore offers generous family accommodation in a carefully considered 144m² footprint. With its classic gable roof, welcoming front porch, and intelligent three-bedroom layout, this modular home delivers the perfect balance of shared family spaces and private retreats for modern living.
The Specs
- Size 144m²
- Bedrooms 3
- Bathrooms 2
- Energy Rating 7 stars
- Roof Style Gable
- Build time 12-16 wks
Designed for modern family dynamics
The Glenmore’s thoughtful layout creates natural zones that support both connection and privacy. The heart of the home is a spacious open-plan area where the kitchen, dining, and family living spaces flow together, creating the perfect environment for daily life and entertaining.
The bedroom wing is cleverly separated, with the master bedroom featuring its own ensuite bathroom and the two additional bedrooms sharing a well-appointed family bathroom. This zoning ensures quiet sleeping areas while maintaining easy access to the home’s living spaces.
The welcoming front porch extends your living area outdoors, offering a perfect spot to enjoy your morning coffee or evening relaxation with views of your surroundings.
Perfect for
Growing families
Ideal for families with children of all ages, offering the space and functionality needed for comfortable everyday living.
Regional home builders
Perfect for country blocks and regional settings, with a design that complements both rural and suburban environments.
Down-sizers with visitors
Offers the perfect balance of manageable living with enough space to comfortably accommodate visiting family and friends.
Investment Property
Attracts quality long term tenants with its family-friendly layout and modern conveniences in high demand locations.
What's included




Intelligent pavilion layout
Distinctive connected pavilions creating natural separation between living and sleeping zones
Central link hallway providing elegant transition between spaces
Thoughtful zoning supporting both family togetherness and individual privacy
Flexible layout adaptable to changing family needs
Year-round comfort with superior insulation and 7-star energy efficiency
Expansive living spaces
Generous open-plan design providing ample space for family gatherings and entertaining
Welcoming front porch extending your living space outdoors
Kitchen positioned for interaction while preparing meals
Dedicated dining area large enough for family meals and dinner parties
Comfortable living room with space for the whole family







Versatile bedroom wing
Master bedroom with ensuite creating a private parents’ retreat
Three additional bedrooms perfect for children, teenagers, or guests
Multi-purpose rumpus/study adaptable to your family’s changing needs
Well-appointed family bathroom with quality fixtures and fittings
Built-in storage throughout for organised family living
Quality construction
Double-glazed windows for thermal and acoustic performance
Comprehensive insulation in walls, ceiling, and floor
Colourbond exterior in your choice of contemporary colours
Quality construction meeting Class 1A residential standards
Designed for Australian conditions with superior structural integrity



Make it your own
While the Yarravale comes with premium features as standard, we offer extensive customisation options to reflect your personal style and specific needs:
External cladding choices
including James Hardie Axon, Weathertex, or custom Colorbond profiles
Interior colour
schemes
with coordinated cabinetry, flooring, and paint options
Bathroom
upgrades
including freestanding bath, walk-in shower, or premium vanity
Kitchen
enhancements
with stone benchtops, tiled splashbacks, or upgraded appliances
Additional external features
such as decking, pergolas, or accessibility ramps
The Prime Portables Difference
Built in our Mansfield facility under controlled conditions, The Yarravale represents our commitment to quality, efficiency, and client satisfaction. Our streamlined 5-step process takes care of everything from design to delivery, including:
Tailored consultation
Site assessment
Permit management
Quality construction
Professional delivery
Our team is ready to help you bring the Yarravale to life on your property. Whether you’re ready to build or still exploring options, we’re here to guide you through every step.


