Versatile living, thoughtfully balanced
2 bedroom modular home
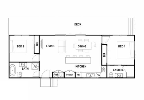
The Elmswood
The Elmswood makes a bold architectural statement with its striking skillion roof design and clean, modern lines. At a generous 78m², this 2-bedroom modular home delivers spacious, light-filled interiors and thoughtful zoning that creates both social spaces and private retreats.
The Specs
- Size 78m²
- Bedrooms 2
- Bathrooms 1
- Energy Rating 7 stars
- Roof Style Skillion
- Build time 12-16 wks
Designed for how you live
The Elmswood balances contemporary style with practical functionality. The heart of the home is a generous open-plan living area that flows seamlessly from the kitchen through dining to living spaces. Oversized windows capture natural light and frame your surroundings, while the modern skillion ceiling creates architectural interest and a sense of expanded space.
The thoughtful floor plan positions the bedrooms at opposite ends of the home, with the master suite featuring a private ensuite bathroom. The second bedroom and main bathroom are perfectly situated for guest privacy or family functionality.
The expansive deck extends your living space outdoors, creating the perfect setting for morning coffees, evening relaxation, or weekend entertaining.
Perfect for
Contemporary home seekers
Ideal for those who appreciate architectural design and modern aesthetics without sacrificing practical living spaces.
Small families
Offers the perfect balance of shared family areas and private bedrooms, with the flexibility to adapt as needs change.
Professional couples
The sophisticated design and separate bedroom zones make this perfect for couples who work from home or value personal space.
Investment property
Stand out in the rental market with a distinctive property that offers more than standard accommodation options.
What's included




Intelligent pavilion layout
Distinctive connected pavilions creating natural separation between living and sleeping zones
Central link hallway providing elegant transition between spaces
Thoughtful zoning supporting both family togetherness and individual privacy
Flexible layout adaptable to changing family needs
Year-round comfort with superior insulation and 7-star energy efficiency
Expansive living spaces
Generous open-plan design providing ample space for family gatherings and entertaining
Welcoming front porch extending your living space outdoors
Kitchen positioned for interaction while preparing meals
Dedicated dining area large enough for family meals and dinner parties
Comfortable living room with space for the whole family







Versatile bedroom wing
Master bedroom with ensuite creating a private parents’ retreat
Three additional bedrooms perfect for children, teenagers, or guests
Multi-purpose rumpus/study adaptable to your family’s changing needs
Well-appointed family bathroom with quality fixtures and fittings
Built-in storage throughout for organised family living
Quality construction
Double-glazed windows for thermal and acoustic performance
Comprehensive insulation in walls, ceiling, and floor
Colourbond exterior in your choice of contemporary colours
Quality construction meeting Class 1A residential standards
Designed for Australian conditions with superior structural integrity



Make it your own
While the Yarravale comes with premium features as standard, we offer extensive customisation options to reflect your personal style and specific needs:
External cladding choices
including James Hardie Axon, Weathertex, or custom Colorbond profiles
Interior colour
schemes
with coordinated cabinetry, flooring, and paint options
Bathroom
upgrades
including freestanding bath, walk-in shower, or premium vanity
Kitchen
enhancements
with stone benchtops, tiled splashbacks, or upgraded appliances
Additional external features
such as decking, pergolas, or accessibility ramps
The Prime Portables Difference
Built in our Mansfield facility under controlled conditions, The Yarravale represents our commitment to quality, efficiency, and client satisfaction. Our streamlined 5-step process takes care of everything from design to delivery, including:
Tailored consultation
Site assessment
Permit management
Quality construction
Professional delivery
Our team is ready to help you bring the Yarravale to life on your property. Whether you’re ready to build or still exploring options, we’re here to guide you through every step.



